Descrizione
Calco, in zona residenziale ed immersa nel verde disponiamo di favolosa villa indipendente dalle innumerevoli qualità abitative tra le quali evidenziamo:
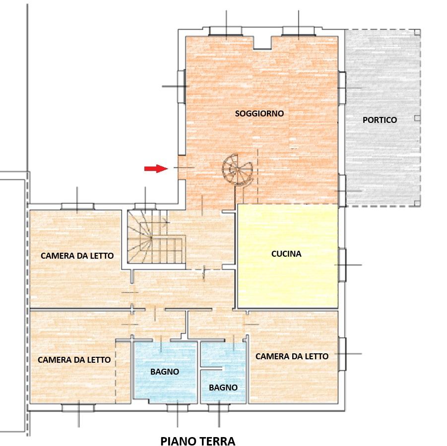
- Zona abitativa di circa mq. 170 che si sviluppa tutta al piano terra e che comprende ingresso, soggiorno doppio con ampia cucina a vista tutto servito dal bellissimo e vivibilissimo portico esterno, disimpegno arredato con armadiature di servizio, tre camere da letto delle quali due con metratura matrimoniale, due bagni entrambi finestrati e completi uno con doccia e uno con vasca;
- Suggestivo soppalco pluriuso (locale lettura – locale ludico – locale musica relax) con affaccio sul soggiorno e servito da ampio e panoramico terrazzo a pozzo;
- Zona accessoria in piano interrato collegato da scale in muratura interna che si divide in ampia taverna con zona cottura a vista, vano cantina, bagno del piano, vano lavanderia, seconda cantina il tutto per circa mq. 146 oltre a corridoio disimpegnato ed arredabile di ulteriori mq. 49 circa;
- Autorimessa di circa mq. 98 con basculante motorizzata, praticamente uno spazio infinito per auto, bici e moto, molto altro;
- Ampio giardino totalmente pianeggiante di circa mq. 800 con una esposizione al sole perfetta e una piantumazione che lo valorizza;
- Piscina semplice ma allo stesso tempo molto godevole, ben posizionata e di facile gestione oltre alla zona barbecue per le immancabili grigliate;
Impianti, tecnologia e risparmio energetico:
Questa abitazione è stata dotata di tutto ciò che era necessario per arrivare al livello di attestazione energetica migliore in assoluto e di fatto la villa è in Classe Energetica è in A4 – 51,55 kWh/mq. anno e presenta:
- Impianto fotovoltaico con pannelli da ben 10 KW di potenza;
- Batteria di accumulo con una potenza di 10 KW per una perfetta autonomia;
- Impianto riscaldamento e raffrescamento con pompa di calore;
- Serramenti a basso emissivo per risparmio energetico con triplo vetro con struttura legno all’interno ed alluminio all’esterno;
- Cappotto termico di isolamento;
- Coibentazione del tetto.
Da segnalare anche impianto d’allarme, porta blindata, videocitofono, pavimenti in parquet di pregio nelle camere, monocottura di qualità nella zona giorno, inserti in pietra sulle facciate esterne ad abbellire ulteriormente questa splendida soluzione abitativa e molto altro da visionare in loco. La zona piscina e la zona barbecue rendono completa questa favolosa dimora. Le condizioni dell’abitazione sono ottime grazie alla accurata e costante manutenzione. La posizione di questa soluzione abitativa è suggestiva e rilassante ma allo stesso tempo connessa con le grandi Città di Lecco, Milano, Monza e Bergamo grazie alla comoda viabilità, alla vicinanza della stazione ferroviaria di Olgiate Molgora e alle linee bus.
Questa abitazione vi stupirà di sicuro… ottimo rapporto qualità/prezzo……. € 690.000,00.
Saremo lieti di avervi ospiti per visionare l’immobile certi che ne resterete colpiti.
Classe energetica A4 51,55 kWh/mq. anno per il massimo risparmio e rispetto dell’ambiente.
















































